GALLERY
PROPERTY DETAIL
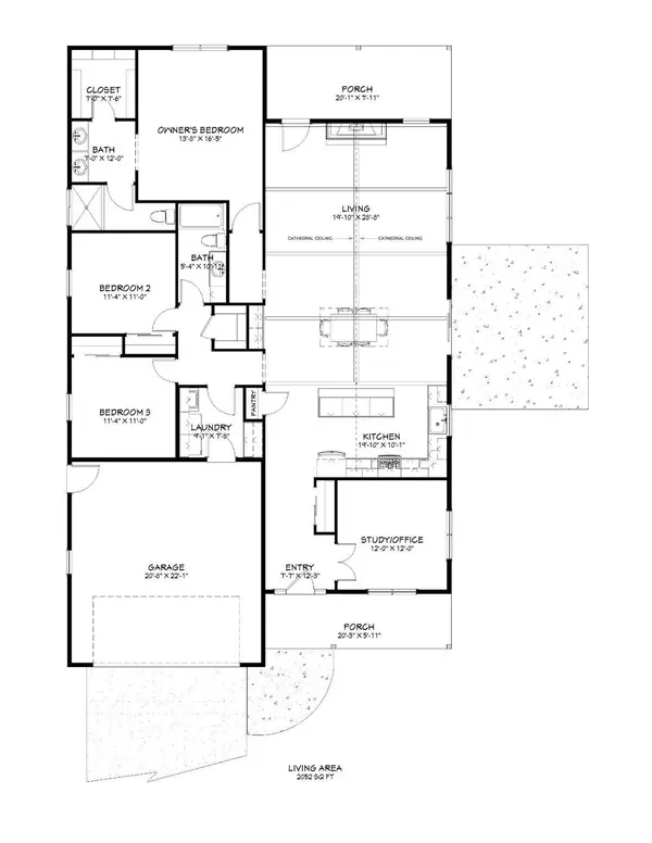
Key Details
Sold Price $699,000
Property Type Single Family Home
Sub Type Single Family Residence
Listing Status Sold
Purchase Type For Sale
Square Footage 2, 052 sqft
Price per Sqft $340
Subdivision Todd Valley Estates
MLS Listing ID 225059033
Sold Date 09/12/25
Bedrooms 3
Full Baths 2
HOA Y/N No
Year Built 2025
Lot Size 1.000 Acres
Acres 1.0
Property Sub-Type Single Family Residence
Source MLS Metrolist
Location
State CA
County Placer
Area 12304
Direction Foresthill Rd to right on Todd Valley Rd. Right on Cold Springs Dr. Left on Arrowhead Dr. Right on Crestline Dr. Corner of Arrowhead and Crestline.
Rooms
Guest Accommodations No
Master Bathroom Shower Stall(s), Double Sinks, Granite, Low-Flow Shower(s), Low-Flow Toilet(s), Tile, Walk-In Closet, Window
Living Room Cathedral/Vaulted, Great Room, Open Beam Ceiling
Dining Room Dining Bar, Dining/Living Combo
Kitchen Pantry Closet, Granite Counter, Island
Building
Lot Description Corner
Story 1
Foundation Slab
Builder Name Wechsler Custom Homes
Sewer See Remarks, Septic System
Water Water District, Public
Interior
Interior Features Cathedral Ceiling, Open Beam Ceiling
Heating Propane, Central, Fireplace(s)
Cooling Ceiling Fan(s), Central, See Remarks
Flooring Carpet, Tile, Wood
Fireplaces Number 1
Fireplaces Type Insert, Living Room, Electric
Window Features Dual Pane Full,Low E Glass Full,Window Screens
Appliance Free Standing Gas Range, Free Standing Refrigerator, Dishwasher, Disposal, Microwave, See Remarks
Laundry Cabinets, Sink, Inside Room
Exterior
Parking Features Attached, RV Possible, Garage Facing Front, See Remarks
Garage Spaces 2.0
Utilities Available Propane Tank Leased, DSL Available, Solar, Underground Utilities, Internet Available, See Remarks
View Hills, Woods
Roof Type Shingle,Composition
Street Surface Paved
Porch Front Porch, Back Porch, Uncovered Patio
Private Pool No
Schools
Elementary Schools Foresthill Union
Middle Schools Foresthill Union
High Schools Placer Union High
School District Placer
Others
Senior Community No
Tax ID 257-140-048-000
Special Listing Condition None
SIMILAR HOMES FOR SALE
Check for similar Single Family Homes at price around $699,000 in Foresthill,CA

Pending
$639,000
5800 Timberland DR, Foresthill, CA 95631
Listed by Reliance Real Estate Services4 Beds 3 Baths 2,891 SqFt
Active
$649,000
5260 Mckeon Ponderosa WAY, Foresthill, CA 95631
Listed by RE/MAX Gold3 Beds 2 Baths 1,896 SqFt
Active
$924,900
4535 Porta Venare CT, Foresthill, CA 95631
Listed by Eastok Realty4 Beds 3 Baths 2,959 SqFt
CONTACT









